
王小姐:13392356097
電話:0769-22258185/22262052
傳真:0769-22685269
采購專線:闞小姐:0769-22258185
400熱線: 400-0969-198
網址://19mp.cn
地址:中國 廣東 東莞 莞城區 溫南路 天寶T8創意園 5號樓 1F

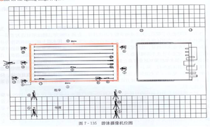
游泳池體育照明
![]() |
古代奧運會并沒有游泳項目,但是游泳運動一直為人類所掌握,在與自然斗爭中,為了生存,有時也為了娛樂,人類逐漸掌握了游泳技能。直到1896年,游泳項目進入了第一屆現代奧運會。從1957年5月1日起,國際泳聯規定只承認在50米標準池中創造的世界紀錄。
國際標準游泳池長50米,寬至少25米,深2米以上。設8條泳道,每條泳道寬2.5米,第一和第八泳道的外側分道線距離池壁為2.5米。
一. 攝像機位分布
該類比賽場地攝像機位圖:如7-135 所示。與表7-84全使用。

表7-84
游泳池攝像機位表
|
機位 |
類型 |
位置 |
用途 |
|
1 |
大型 |
起點/終點的看臺高處 |
主景鏡頭 |
|
2 |
大型 |
起點/終點的看臺低處 |
特定鏡頭 |
|
3 |
微型 |
在50m游泳池的平臺上來回移動 |
低角度動作 |
|
4 |
大型 |
50m起點看臺低處 |
50m起點,低拐彎動作 |
|
5 |
大型 |
50m起點看臺高處 |
50m起點,中拐彎,主翻轉 |
|
6 |
無線 |
起點/終點處池岸上 |
介紹,游泳池出口和儀式 |
|
7 |
無線 |
起點/終點處池岸上 |
介紹,游泳池出口和儀式 |
|
8 |
便攜式 |
拐彎處池岸上 |
特定鏡頭,儀式 |
|
9 |
微型車載移動攝像機 |
游泳池第6道的底部,2m內來回移動 |
水下跟蹤攝像 |
|
10 |
微型高架 |
中央池道上方的80m軌道 |
高空攝像 |
|
11 |
大型 |
池岸后部 |
景觀鏡頭,動作分解動作 |
|
12 |
便攜式 |
游泳池一側的池岸拐角處 |
分解動作,式 |
|
13 |
便攜式 |
安裝在共用的塔上(待定) |
場館鏡頭 |
|
14 |
微型 |
安裝在距起點/終點右邊的攝像機3m處的游泳池底 |
倒機翻轉 |
|
15 |
微型 |
安裝在距起點/終點左邊的攝像機4m的游泳池底 |
倒機翻轉 |
|
16 |
潛望鏡攝像機 |
安裝在距入口12m的游泳也壁上 |
從泳道15米標志的水下攝影范圍 |
|
17 |
微型 |
安裝在第4道的入口 |
第4口和翻轉,游泳選手的特定鏡頭 |
|
18 |
微型 |
安裝在第5道的入口 |
第5入口和翻轉,游泳選手的特定鏡頭 |
|
19 |
防水吊桿攝像機 |
游泳池拐角池岸上 |
拐角攝像范圍和儀式 |
|
20 |
大型SSM攝像機 |
起點/終點的看臺中央 |
分解動作 |
|
21 |
大型SSM攝像機 |
在池岸中央 |
對著分解動作和儀式 |
|
22 |
大型SSM攝像機 |
在運動員集合室 |
離開集合室 |
二. 游泳池場地照明標準
|
游泳、跳水、水球、花樣游泳場地的照明標準 | ||||||||||||
|
等級 |
使用功能 |
照度(lx) |
照度均勻度 |
光源 | ||||||||
|
Eh |
Evmai |
Evaux |
Uh |
Uvmin |
Uvaux |
Ra |
Tcp(K) | |||||
|
U1 |
U2 |
U1 |
U2 |
U1 |
U2 | |||||||
|
Ⅰ |
訓練和娛樂活動 |
200 |
— |
— |
— |
0.3 |
— |
— |
— |
— |
≥65 |
|
|
Ⅱ |
業余比賽、 專業訓練 |
300 |
— |
— |
0.3 |
0.5 |
— |
— |
— |
— |
≥65 |
≥4000 |
|
Ⅲ |
專業比賽 |
500 |
— |
— |
0.4 |
0.6, |
— |
— |
— |
— |
≥65 |
≥4000 |
|
Ⅳ |
TV轉播國家、國際比賽 |
— |
1000 |
750 |
0.5 |
0.7 |
0.4 |
0.6 |
0.3 |
0.5 |
≥80 |
≥4000 |
|
Ⅴ |
TV轉播重大、國際比賽 |
— |
1400 |
1000 |
0.6 |
0.8 |
0.5 |
0.7 |
0.3 |
0.5 |
≥80 |
≥4000 |
|
Ⅵ |
HDTV轉播重大、國際比賽 |
— |
2000 |
1400 |
0.7 |
0.8 |
0.6 |
0.7 |
0.4 |
0.6 |
≥90 |
≥5500 |
|
— |
TV應急 |
— |
750 |
— |
0.5 |
0.7 |
0.3 |
0.5 |
— |
— |
≥80 |
≥4000 |
|
注:1.應避免人工光和天然光經水面反射對運動員、裁判員、攝像機和觀眾造成眩光。 | ||||||||||||
|
2.墻和頂棚的反射比分別不低于0.4和0.6,池底的反射比不應低于0.7。 | ||||||||||||
|
3.應保證繞游泳池周邊2m區域、1m高度有足夠的垂直照度。 | ||||||||||||
|
4.室外場地V等級Ra和Tcp的取值應與Ⅵ等級相同。 | ||||||||||||
|
游泳項目的垂直照度(維持值) | |||
|
拍攝距離 |
25m |
75m |
150m |
|
A類 |
400lx |
560lx |
800lx |
|
照度比和均勻度 | |||
|
Ehaverage:Evave=0.5~2(對于參考面) | |||
|
Evmin:Evmax≥0.4(對于參考面) | |||
|
Ehmin:Ehmax≥0.5(對于參考面) | |||
|
Evmin:Evmax≥0.3(每個格點的四個方向) | |||
|
注 1.眩光指數GR<50,僅用于戶外。 | |||
|
2.主賽區(PA):50m×21m(8泳道),或50m×25m(10泳道);安全區:繞泳池2m寬。 | |||
|
3.總賽區(TA):54m×25m(或29m) | |||
|
4.附近有跳水池,兩地之間的距離應為4~5m. | |||
|
5.對于水球,使用池中央30m區。 | |||
三. 布置方式
室內游泳跳水館通常考慮燈具的檢修維護,一般不在水面上方布置燈具,但水面上方設有專用檢修通道的除外。對于沒有電視轉播要求的場館,燈具往往分散布置在水面上方以外的吊頂下,屋架下或墻壁上,對于有電視轉播要求的場館,燈具一般采用光帶式布置,即在兩側池岸上空布置縱向馬道,在兩端池岸上空布置橫向馬道。另外還需要在跳臺和跳板下設置適量燈具消除跳臺和跳板形成的陰影,并對跳水運動熱身池加以重點照明。
應該強調一下,跳水運動項目不應在跳水池上方布置燈具。否則水中將會出現燈的鏡像影像,對運動員產生光干擾,影響運動員的判斷和發揮。
另外由于水介質特有的光學特性,室內游泳跳水館燈具和馬道布置主要考慮以下問題。
1. 眩光控制
由于水介質特有的光學特性,游泳館場地照明的眩光控制較其它類型場館更加困難,也顯得龍為重要。
a. 通過控制燈具投射角控制水面的反射眩光。一般來說,體育館的燈具投射角不大于60°,泳館的燈具投射角則要求不大于55°,最好不大于50°.光線入射角越大,水面反射光越多。
b. 針對跳水運動員的眩光控制措施。對跳水運動而言,其場地范圍包括從跳臺上2米,跳板上5米到水面,即跳水運動員的整個運動軌跡空間。在此空間內,場地燈光均不允許對運動員有任何不舒適眩光。
c. 嚴格控制對攝像機的眩光。即不得向主攝像機視野反射靜水表面的光,燈具發出的光線也不得直接投向固定攝像機。如不直接照射以固定攝像機為中心的50°扇形區域則更為理想。如圖7-143

d. 嚴格控制燈具在水中的鏡像產生的眩光。對于有電視轉播的游泳跳水館,比賽大廳空間較高大,場地照明燈具一般采用400W以上的金屬鹵化物燈具。這些燈具在水中的鏡像亮度很高,如果出現在運動員,裁判,攝像機的觀眾視野內,均會產生眩光,影響比賽和觀賽以及轉播的質量。
2. 馬道布置
a. 正確確定比賽中照明計算的空間范圍。
b. 合理的確定馬道位置。
電視轉播不僅要求有水平照度,還要求有4個方向的垂直照度。同時為保證拍攝畫面的立體感,水平照度與垂直照度之比Eh/Ev應在0.5-2之間。以圖7-145為例,燈具近側瞄準點的投射角α1不宜太小,而遠側瞄準點的投射角α2又不宜太大。如果投射角α1太小,則垂直照度分量太小,不能滿足Eh/Ev 的比例要求,如果投射角α2太大,則會產生嚴重眩光。

四.體育照明節能的設計原則
1. 不能降低照明標準
2. 選擇合適的照明標準
選擇合適的照明標準至關重要。對于大多數地市級體育館建筑,高校的體育建筑,其體育照明不應按舉行國際大賽的標準進行設計,否則會產生以下問題:
a. 一次投資增多
b. 維護工作量增加,維護成本增加。
c. 為體育照明服務的供配電系統復雜,用電量增大。
d. 即使國際大賽進行照明設計,當未來舉行國際大賽時,還需要按最新的國際單項體育組織和電視轉播機構要求進行改造。
3. 永久照明系統和臨時照明系統相結合。
4. 與建筑專業密切配合。
5. 技術性能與投資同時考慮。





